1. Home
  2. Annunci immobiliari
  3. vendita
  4. albiate179
Cerca immobile

Posizione:

Tipo contratto:

Categoria:

Tipo immobile:

ALBIATE179ALBIATE179ALBIATE179ALBIATE179ALBIATE179ALBIATE179ALBIATE179ALBIATE179ALBIATE179ALBIATE179ALBIATE179ALBIATE179ALBIATE179ALBIATE179ALBIATE179ALBIATE179ALBIATE179ALBIATE179ALBIATE179ALBIATE179ALBIATE179ALBIATE179ALBIATE179ALBIATE179ALBIATE179ALBIATE179ALBIATE179ALBIATE179ALBIATE179ALBIATE179ALBIATE179ALBIATE179ALBIATE179ALBIATE179ALBIATE179

ALBIATE179

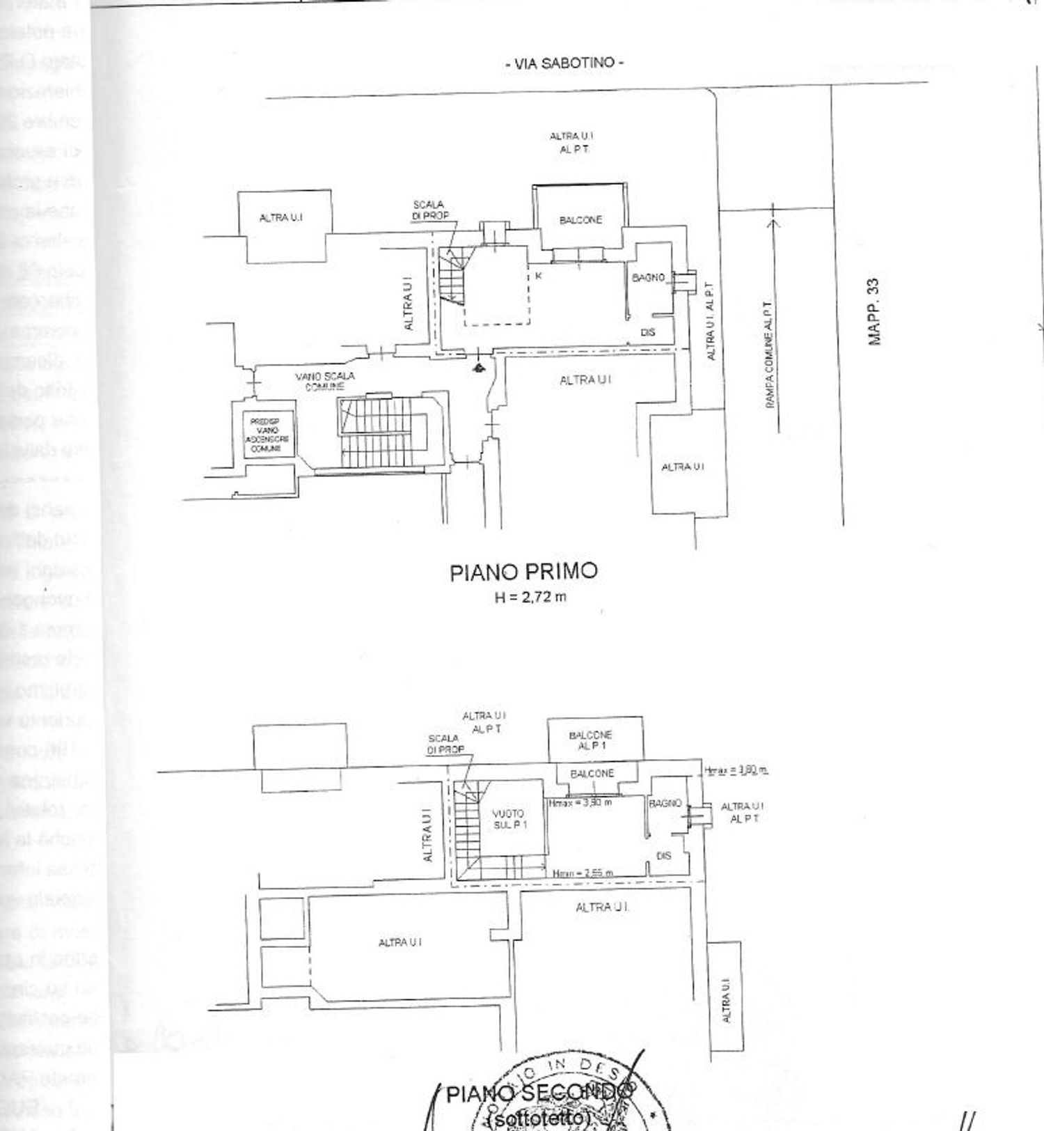
Proponiamo in vendita un elegante appartamento bilocale situato nel cuore di Albiate, in una traversa di Via Gorizia, perfetto per chi cerca comfort e funzionalità in una zona residenziale tranquilla ma ben collegata. L'immobile è disposto su due livelli: piano primo (39 mq) composto da soggiorno con angolo cottura con diretto accesso al terrazzo (8 mq) oltre a disimpegno e bagno con finestra. La scala interna conduce al piano secondo (27 mq) composto da camera matrimoniale con accesso al balcone (3 mq) e da un secondo bagno con finestra e completo di ampio box doccia. Completa la proprietà l'obbligo d’acquisto del box auto privato di 16 mq c. a. a €20.000. PISCINA CONDOMINIALE L'appartamento si distingue per le sue finiture moderne: i bagni sono dotati di sanitari sospesi, la pavimentazione in gres porcellanato effetto pietra, riscaldamento a pavimento e le travi a vista decapate in bianco donano all'ambiente uno stile contemporaneo ed accogliente. L'immobile è inoltre dotato di impianto di allarme e di aria condizionata. Le spese condominiali sono contenute (150 euro/mese riscaldamento e piscina compresi; balconi in corso di rifacimento, a carico del venditore). Albiate offre tutti i principali servizi sotto casa: scuole, supermercati, aree verdi e facile accesso alle arterie stradali verso Monza e Milano rendendo questa proposta interessante anche per giovani coppie o professionisti pendolari. Non perdere l’occasione! Contattaci subito per maggiori informazioni o fissare una visita. La presente pubblicità è da considerarsi puramente indicativa e non costituisce in nessun caso vincolo contrattuale.

Si trova in: Albiate, provincia di Monza Brianza (Lombardia)
Via Gorizia, 22 - 20847

  • Prezzo: 159.000€
  • Immobile: Residenziale in Vendita
  • Tipologia immobile: Appartamento
  • Tipologia costruzione: Rinnovato di recente
  • Classe energetica: A
  • Superficie: 76Mq
  • Locali: 2
  • Bagni: 2
  • Camere: 1
  • Terrazzo: 1
  • Box: 1
  • Aria Condizionata: presente
Richiedi informazioni
Autorizzo al trattamento dei dati (privacy)
Autorizzo ricezione newsletter
© 2026 Studio Emme di Alessandro Mercandelli | privacy | designed by © Creative Studio