1. Home
  2. Annunci immobiliari
  3. vendita
  4. cesano-app.2a
Cerca immobile

Posizione:

Tipo contratto:

Categoria:

Tipo immobile:

CESANO-APP.2ACESANO-APP.2ACESANO-APP.2ACESANO-APP.2ACESANO-APP.2ACESANO-APP.2ACESANO-APP.2ACESANO-APP.2ACESANO-APP.2ACESANO-APP.2ACESANO-APP.2ACESANO-APP.2ACESANO-APP.2ACESANO-APP.2ACESANO-APP.2ACESANO-APP.2ACESANO-APP.2ACESANO-APP.2ACESANO-APP.2ACESANO-APP.2ACESANO-APP.2A

CESANO-APP.2A

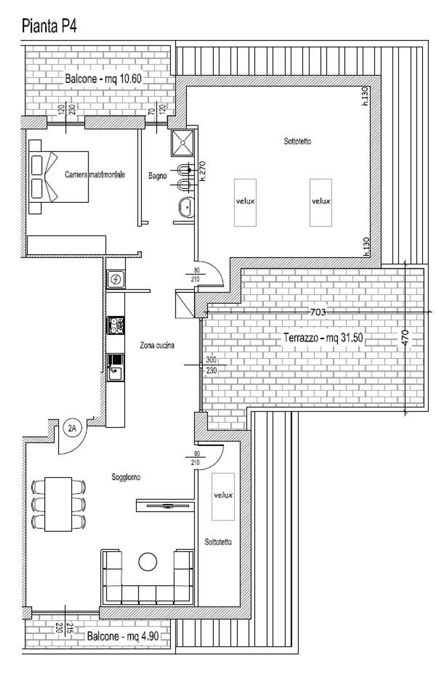
In Cesano Maderno, in una zona residenziale tranquilla e ben servita, a pochi minuti dal centro, proponiamo nuovi prestigiosi appartamenti in classe energetica A4. L’area si distingue per l’ottimo equilibrio tra comfort urbano e quiete, immersa in un contesto prevalentemente di villette e piccole palazzine moderne. La posizione strategica garantisce facile accesso a tutti i principali servizi: scuole, supermercati, parchi pubblici e collegamenti stradali, con la stazione ferroviaria a breve distanza e il veloce collegamento con la SS35 Milano-Meda. Ideale per famiglie, giovani coppie e chi desidera vivere in un ambiente curato e sicuro, senza rinunciare alla comodità degli spostamenti quotidiani. La residenza sorgerà in Via Sicilia e sarà composta da 18 appartamenti disposti su quattro piani fuori terra oltre ad interrato con relativa consegna prevista per Settembre 2026. La palazzina sarà dotata di tutti i comfort moderni e sarà realizzata con finiture signorili. APPARTAMENTO 2A Attico di 123 mq, sito al QUARTO PIANO, composto da ingresso che porta al luminoso ed ampio soggiorno con cucina a vista, terrazzo di 31,50 mq, balcone di 4,90 mq, disimpegno, camera matrimoniale e bagno con box doccia, entrambi con sfogo su terrazzo di 10,60 mq, due sottotetti. DETTAGLIO METRATURA: APPARTAMENTO: 79,00 mq TERRAZZI: 47 mq SOTTOTETTO: 35,00 mq CANTINA: 3,65 mq PARTI COMUNI: 5,53 mq Possibilità di acquisto di box singoli/doppi di diverse metrature a partire da € 20.000, 00. Capitolato: tutti gli appartamenti saranno termo-autonomi alimentati da pompa di calore (senza alcuna fonte di gas), riscaldamento a pavimento, predisposizione impianto di aria condizionata e di allarme, Serramenti in PVC trasmittanza <1,3, impianto fotovoltaico + accumulo condominiale. Per maggiori info e/o per visualizzare i progetti, contattaci.

Si trova in: Cesano Maderno, provincia di Monza Brianza (Lombardia)
Via Sicilia, 17 - 20811

  • Prezzo: 312.000€
  • Immobile: Residenziale in Vendita
  • Tipologia immobile: Appartamento
  • Tipologia costruzione: Nuova realizzazione
  • Tipologia edificio: Non specificato
  • Anno: 2026
  • Classe energetica: D
  • Superficie: 123Mq
  • Locali: 3
  • Bagni: 1
  • Camere: 2
  • Terrazzo: 1
  • Box: 1
  • Giardino: presente
  • Ascensore: presente
Richiedi informazioni
Autorizzo al trattamento dei dati (privacy)
Autorizzo ricezione newsletter
© 2026 Studio Emme di Alessandro Mercandelli | privacy | designed by © Creative Studio